Насущная проблема любого специалиста, занимающегося недвижимостью, — оформление множества разнообразных бумаг. И немалая часть их приходится на планировки типовых квартир. Чтобы не заниматься поисками нужной бумажки, а иметь под рукой все структурированные планы, стоит воспользоваться сборником «Проекты типовых квартир для Arcon Home 2 и последующих версий».

На диске представлены проекты жилых домов 11 типовых серий: П-44Т, П-44ТМ, П-111М, П-3М, ПД-4, П-46М, П-55М, КОПЭ, И-155, ИП-46С, И-1723. В принципе представленное на диске является не самостоятельным программ-ным продуктом, а скорее заготовками. Но тем не менее эти данные даже без специальных приложений представляют собой определенную ценность. Вся информация рассортирована по каталогам: «3D-объекты квартиры», «Картинки», «Планы», «Проекты». В первом собраны интерактивные модели, работающие в среде программы о2с, которая также есть на диске. Во втором представлены объемные виды квартир «сверху» в виде картинок, собранных из моделей, в третьем хранятся планировки квартир с проставленными размерами. А наиболее значим каталог «Проекты», включающий в себя отсортированные папки с проектами квартир в формате ArCon Home 2. Причем каждый проект допустимо использовать в любой версии ArCon с ограничением по возможностям соответствующей версии.

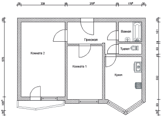
Единственный существенный недостаток продукта для профессионалов — недостаточно полная информация на картинках и планах. В частности, не указаны метраж помещений и высота потолков, планы квартир не привязаны к площадкам. Впрочем, пользователю открывается широкое поле деятельности для создания документов «для себя» на базе имеющихся проектов.

Несмотря на узкую направленность содержимого диска, сфера его применения весьма разнообразна. Он способен заинтересовать не только специалистов по недвижимости, но и опытных пользователей. Так, употребление данных заготовок существенно облегчит выполнение эскизов для ремонта, расстановки мебели и даже перепланировок.


Проекты типовых квартир для ArCon Home 2 и последующих версий

Системные требования: Pentium, 32-Мбайт ОЗУ, видеосистема, поддерживающая разрешение 800×600 точек при отображении 65 536 цветов, 4Х-дисковод CD-ROM, мышь. Программа работает в среде Windows 98/2000/XP.
Разработка: STUDIOMAG
Издание: «Новый Диск»